2025 Dixie Hwy ,Mixed Use en Venta & Alquilar
2025 Dixie Hwy en Venta & Alquilar




























Precio $8,000,000.00
- Tama帽o de lote 66904
- A帽o de construcci贸n 1984
- Frente al agua
- Zip 33060
- Estilo
- Parking Descripci贸n
- Piscina Yes
- Estado Active
Descripci贸n
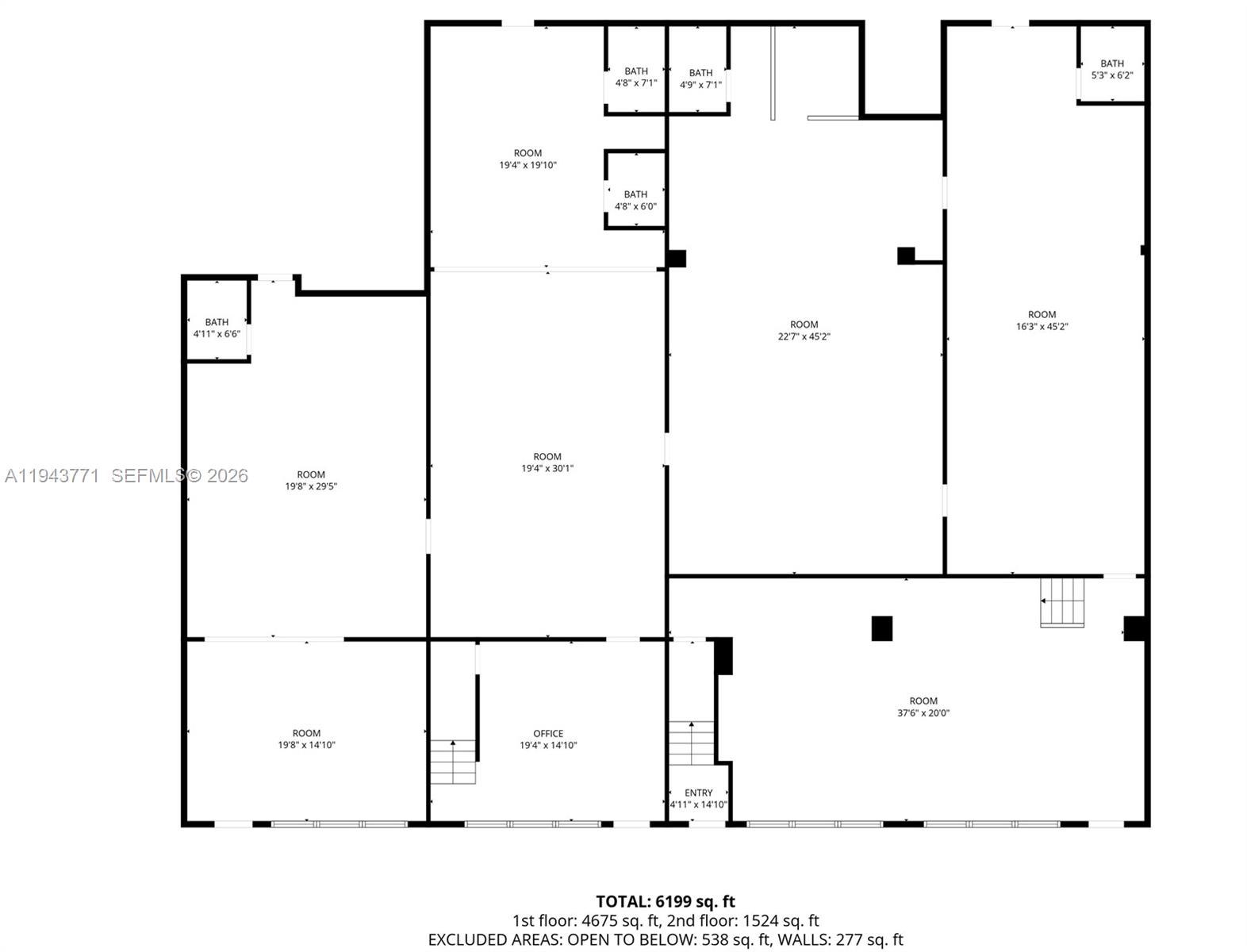
City Zoning Confirmation Supporting Residential Density Under Live Local Cash-flowing Live Local redevelopment opportunity on North Dixie Highway (SR-811) in Pompano Beach. ?1.54 acres improved with 26,808 SF of existing retail/office buildings generating $570,000+ in annual income, while supporting a future ?140-unit residential development by-right under Florida?s Live Local Act, subject to site plan approval. In addition to redevelopment density, the asset offers near-term cap-rate compression through tenant upside. Current in-place rents average approximately $21/SF, materially below documented market leases in the $28?$32/SF range, providing a clear path to NOI growth through lease renewals and re-tenanting. This is not a retail acquisition. Developers are acquiring time, entitlement certainty, unit yield, and income growth. The property generates cash flow during the entitlement and planning phase, allowing the asset to pay for its own hold while value is enhanced on both the income and redevelopment fronts.
KENDALL GREEN SECTION G 59-44 B COMM AT INTER OF EXT OF S/L & EXT OF E/L OF SAID SUB,NLY ALG E/L 200 TO POB,CONT NLY 125,WLY 147.80,SLY 125,
City Zoning Confirmation Supporting Residential Density Under Live Local Cash-flowing Live Local redevelopment opportunity on North Dixie Highway (SR-811) in Pompano Beach. ?1.54 acres improved with 26,808 SF of existing retail/office buildings generating $570,000+ in annual income, while supporting a future ?140-unit residential development by-right under Florida?s Live Local Act, subject to site plan approval. In addition to redevelopment density, the asset offers near-term cap-rate compression through tenant upside. Current in-place rents average approximately $21/SF, materially below documented market leases in the $28?$32/SF range, providing a clear path to NOI growth through lease renewals and re-tenanting. This is not a retail acquisition. Developers are acquiring time, entitlement certainty, unit yield, and income growth. The property generates cash flow during the entitlement and planning phase, allowing the asset to pay for its own hold while value is enhanced on both the income and redevelopment fronts.
City:Pompano Beach,Zoning:B-3,List A O R:A-Miami Association of REALTORS,Tax Year:2025,Latitude:26.2560039,List Price:8000000,Listing Id:A11943771,Longitude:-80.1195558,Mls Status:Active,Year Built:1984,Postal Code:33060,Street Name:Dixie Hwy,Coordinates:1:26.2560039,Gross Income:571884,Photos Count:28,Business Type:1:Special Purpose,Days On Market:22,Listing Terms:1:Conventional/Refinance,2:Secondary Financing,Lot Size Units:Square Feet,M I A M I R E_ Area:3020,On Market Date:2026-01-12,Parcel Number:484226210040,Property Type:Commercial Sale,Street Number:2025,Public Remarks:City Zoning Confirmation Supporting Residential Density Under Live Local Cash-flowing Live Local redevelopment opportunity on North Dixie Highway (SR-811) in Pompano Beach. ?1.54 acres improved with 26,808 SF of existing retail/office buildings generating $570,000+ in annual income, while supporting a future ?140-unit residential development by-right under Florida?s Live Local Act, subject to site plan approval. In addition to redevelopment density, the asset offers near-term cap-rate compression through tenant upside. Current in-place rents average approximately $21/SF, materially below documented market leases in the $28?$32/SF range, providing a clear path to NOI growth through lease renewals and re-tenanting. This is not a retail acquisition. Developers are acquiring time, entitlement certainty, unit yield, and income growth. The property generates cash flow during the entitlement and planning phase, allowing the asset to pay for its own hold while value is enhanced on both the income and redevelopment fronts.,County Or Parish:Broward County,Expiration Date:2027-01-12,List Office Name:RE/MAX 5 Star Realty,Standard Status:Active,Living Area Units:Square Feet,Major Change Type:Price Decrease,Postal Code Plus4:4968,Property Sub Type:Mixed Use,State Or Province:FL,Street Dir Prefix:N,Tax Annual Amount:76000,Unparsed Address:2025 N Dixie Hwy, Pompano Beach FL 33060,Listing Agreement:Exclusive Right To Sell,Building Area Total:26808,Building Area Units:Square Feet,Leasable Area Units:Square Feet,Lot Size Square Feet:66904,M I A M I R E_ Flood Zone:X,Original List Price:9500000,Previous List Price:9500000,Public Survey Range:48,I D X Participation Y N:1,M I A M I R E_ N A R Rules Y N:1,Syndication Remarks:City Zoning Confirmation Supporting Residential Density Under Live Local Cash-flowing Live Local redevelopment opportunity on North Dixie Highway (SR-811) in Pompano Beach. ?1.54 acres improved with 26,808 SF of existing retail/office buildings generating $570,000+ in annual income, while supporting a future ?140-unit residential development by-right under Florida?s Live Local Act, subject to site plan approval. In addition to redevelopment density, the asset offers near-term cap-rate compression through tenant upside. Current in-place rents average approximately $21/SF, materially below documented market leases in the $28?$32/SF range, providing a clear path to NOI growth through lease renewals and re-tenanting. This is not a retail acquisition. Developers are acquiring time, entitlement certainty, unit yield, and income growth. The property generates cash flow during the entitlement and planning phase, allowing the asset to pay for its own hold while value is enhanced on both the income and redevelopment fronts.,Listing Contract Date:2026-01-12,Originating System I D:miamire,Public Survey Section:26,Street Number Numeric:2025,Tax Legal Description:KENDALL GREEN SECTION G 59-44 B COMM AT INTER OF EXT OF S/L & EXT OF E/L OF SAID SUB,NLY ALG E/L 200 TO POB,CONT NLY 125,WLY 147.80,SLY 125,M I A M I R E_ Current Price:8000000,Public Survey Township:48,Originating System Name:Miami Association of REALTORS?,M I A M I R E_ Internet Remarks:14 tenants producing $571,884 in annual rent.,M I A M I R E_ Parcel Number M L X:0040,M I A M I R E_ Showing Time Flag:1,M I A M I R E_ Street View Param:1$26.256097$-80.119536$252.52$13.33$1.00$QcPKnkRzNBeMXpxuoajAfQ,M I A M I R E_ Supplement Count:5,Contract Status Change Date:2026-01-12,Internet Address Display Y N:1,Number Of Units In Community:14,M I A M I R E_ Ok To Advertise List:With Written Broker Approval,M I A M I R E_ Subdivision Number:21,M I A M I R E_ Agent Alternate Phone:305-968-6238,Internet Entire Listing Display Y N:1,M I A M I R E_ Address Internet Display:2025 N Dixie Hwy,
- Precio $8,000,000.00
- Cambio de precio: 2026-01-21
- Tama帽o de lote sq. ft.
- Precio por p.c. $
- A帽o de construcci贸n 1984
- Frente al agua
- Ver
- Piscina Yes
- Estilo
- Construcci贸n
- Parking Descripci贸n
- Tipo de suelo
- Tipo de propiedad Commercial Sale
- Estado Active
- Listado 2026-01-21
- D铆as en el mercado 40
- Amueblado
- City Pompano Beach
- Zip 33060
- State Florida
- Subdivision
- Development Name
- HOA Fees
- Taxes 76000
- Taxes Year 2025
En
Ru
Es