1200 Brickell Ave #505-B ,Retail, Commercial Office en Venta & Alquilar
1200 Brickell Ave #505-B en Venta & Alquilar













Precio $1,025,000.00
- Tama帽o de lote 2146
- A帽o de construcci贸n 1982
- Frente al agua
- Zip 33131
- Estilo
- Parking Descripci贸n Common, Covered, Guest
- Piscina Yes
- Estado Active
Descripci贸n
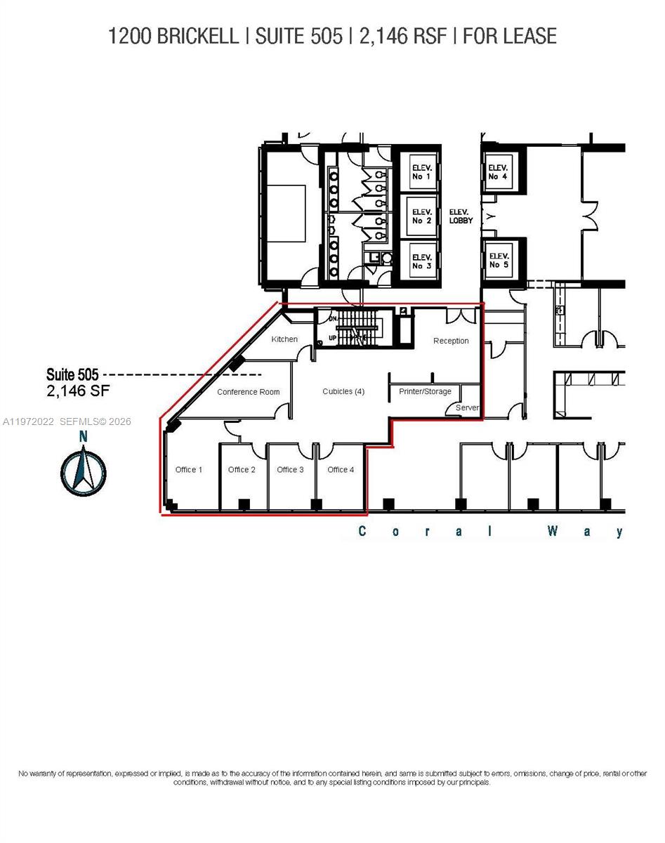
Move-in ready office suite in the heart of Brickell. This 2,146 square foot office offers a functional layout with four private offices, reception area, conference room, printer/copy room, and kitchenette. The space flows efficiently and is well-suited for an owner-user or investor seeking immediate usability. Located within 1200 Brickell Avenue, the suite enjoys a professional setting with convenient access to the surrounding Brickell district. The office overlooks the planned landscaped garden pavilion and the Ora by Casa Tua development, providing a more open outlook and long-term enhancement to the immediate environment. A rare opportunity to acquire a well-located, updated office suite offering strong presence, accessibility, and long-term appeal in the core of Brickell.
1200 BRICKELL CONDO UNIT 505-B UNDIV 0.360% INT IN COMMON ELEMENTS OFF REC 26193-0065
Central Business District, Corner Unit, Corner Lot
Move-in ready office suite in the heart of Brickell. This 2,146 square foot office offers a functional layout with four private offices, reception area, conference room, printer/copy room, and kitchenette. The space flows efficiently and is well-suited for an owner-user or investor seeking immediate usability. Located within 1200 Brickell Avenue, the suite enjoys a professional setting with convenient access to the surrounding Brickell district. The office overlooks the planned landscaped garden pavilion and the Ora by Casa Tua development, providing a more open outlook and long-term enhancement to the immediate environment. A rare opportunity to acquire a well-located, updated office suite offering strong presence, accessibility, and long-term appeal in the core of Brickell.
City:Miami,Zoning:6407,List A O R:A-Miami Association of REALTORS,Stories:20,Tax Year:2025,Latitude:25.7619992,Cooling Y N:1,List Price:1025000,Listing Id:A11972022,Longitude:-80.1923449,Mls Status:Active,Year Built:1982,Directions:Driving Directions: Positioned at Brickell Avenue and Coral Way, the location is moments from Mary Brickell Village and Brickell City Centre, along with some of Miami?s most established dining destinations.,Postal Code:33131,Street Name:Brickell Ave,Tenant Pays:1:Sales Tax,2:Signs,Unit Number:505-B,Coordinates:1:25.7619992,Lot Features:1:Corner Unit,2:Corner Lot,Photos Count:13,Business Type:1:Professional,Days On Market:20,Listing Terms:1:Conventional/Refinance,Lot Size Units:Square Feet,M I A M I R E_ Area:41,On Market Date:2026-02-20,Parcel Number:01-41-38-142-0920,Property Type:Commercial Sale,Stories Total:20,Street Number:1200,Public Remarks:Move-in ready office suite in the heart of Brickell. This 2,146 square foot office offers a functional layout with four private offices, reception area, conference room, printer/copy room, and kitchenette. The space flows efficiently and is well-suited for an owner-user or investor seeking immediate usability. Located within 1200 Brickell Avenue, the suite enjoys a professional setting with convenient access to the surrounding Brickell district. The office overlooks the planned landscaped garden pavilion and the Ora by Casa Tua development, providing a more open outlook and long-term enhancement to the immediate environment. A rare opportunity to acquire a well-located, updated office suite offering strong presence, accessibility, and long-term appeal in the core of Brickell.,Structure Type:1:Commercial,2:Office,Association Fee:3545,County Or Parish:Miami-Dade County,Expiration Date:2027-02-20,List Office Name:BHHS EWM Realty,Standard Status:Active,Living Area Units:Square Feet,M I A M I R E_ Last Use:Corporate Office,Major Change Type:Price Decrease,Parking Features:1:Covered,2:Guest,Postal Code Plus4:3210,Property Sub Type:Retail,State Or Province:FL,Tax Annual Amount:15886,Unparsed Address:1200 Brickell Ave # B, Miami FL 33131,Listing Agreement:Exclusive Right To Sell,Security Features:1:Smoke Detector(s),2:Fire Sprinkler System,3:Security Guard,Year Built Details:Resale,Building Area Units:Square Feet,Leasable Area Units:Square Feet,Lot Size Square Feet:2146,M I A M I R E_ Flood Zone:AE,M I A M I R E_ For Sale Y N:1,M I A M I R E_ Num Floors:20,Number Of Buildings:1,Original List Price:1212490,Previous List Price:1212490,Public Survey Range:41,I D X Participation Y N:1,M I A M I R E_ N A R Rules Y N:1,M I A M I R E_ Num Offices:18,Syndication Remarks:Move-in ready office suite in the heart of Brickell. This 2,146 square foot office offers a functional layout with four private offices, reception area, conference room, printer/copy room, and kitchenette. The space flows efficiently and is well-suited for an owner-user or investor seeking immediate usability. Located within 1200 Brickell Avenue, the suite enjoys a professional setting with convenient access to the surrounding Brickell district. The office overlooks the planned landscaped garden pavilion and the Ora by Casa Tua development, providing a more open outlook and long-term enhancement to the immediate environment. A rare opportunity to acquire a well-located, updated office suite offering strong presence, accessibility, and long-term appeal in the core of Brickell.,Listing Contract Date:2026-02-20,Originating System I D:miamire,Public Survey Section:38,Showing Instructions:Appointment Only,Call Listing Agent,Street Number Numeric:1200,Tax Legal Description:1200 BRICKELL CONDO UNIT 505-B UNDIV 0.360% INT IN COMMON ELEMENTS OFF REC 26193-0065,M I A M I R E_ Current Price:1025000,M I A M I R E_ Milesto Beach:5,Public Survey Township:41,Construction Materials:1:Elevated Construction,M I A M I R E_ Municipal Code:1,Originating System Name:Miami Association of REALTORS?,Association Fee Frequency:Monthly,M I A M I R E_ Internet Remarks:Move-in ready 2,146 SF private office suite in the heart of Brickell. Functional layout & Efficient flow allow for immediate occupancy.,M I A M I R E_ Parcel Number M L X:0920,M I A M I R E_ Street View Param:1$25.762097$-80.192271$278.25$13.33$1.00$CAoSF0NJSE0wb2dLRUlDQWdJQ0VtZUt5dHdF,Contract Status Change Date:2026-02-20,Distance To Freeway Numeric:1,Internet Address Display Y N:1,M I A M I R E_ Ok To Advertise List:No,M I A M I R E_ Subdivision Number:142,M I A M I R E_ Agent Alternate Phone:773-208-2992,M I A M I R E_ Common Area Maint Amount:3545,Internet Entire Listing Display Y N:1,M I A M I R E_ Address Internet Display:1200 Brickell Ave 505-B,M I A M I R E_ Common Area Maint Includes:1:Assessment Fees,2:Interior Electric,3:Outside Insurance,4:Janitorial,5:Trash Removal,
- Precio $1,025,000.00
- Cambio de precio: 2026-03-12
- Tama帽o de lote sq. ft.
- Precio por p.c. $
- A帽o de construcci贸n 1982
- Frente al agua
- Ver
- Piscina Yes
- Estilo
- Construcci贸n Concrete Block Construction, Elevated Construction
- Parking Descripci贸n Common, Covered, Guest
- Tipo de suelo Carpet
- Tipo de propiedad Commercial Sale
- Estado Active
- Listado 2026-03-12
- D铆as en el mercado 21
- Amueblado
- City Miami
- Zip 33131
- State Florida
- Subdivision
- Development Name
- HOA Fees 3545
- Taxes 15886
- Taxes Year 2025
En
Ru
Es